Light as Inspiration.

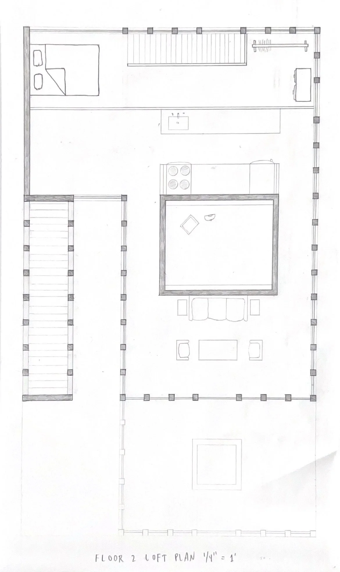
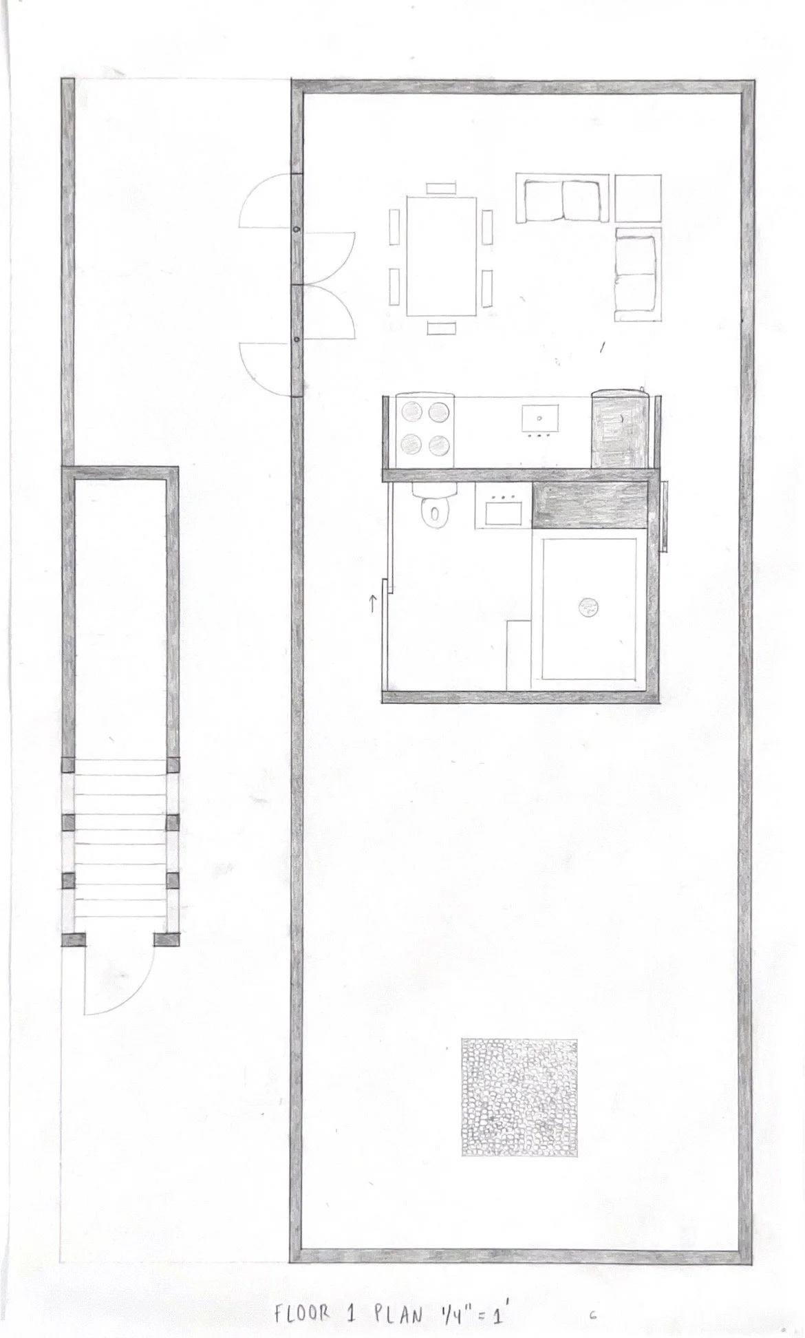
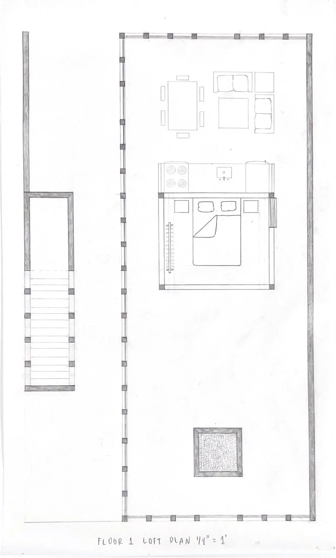
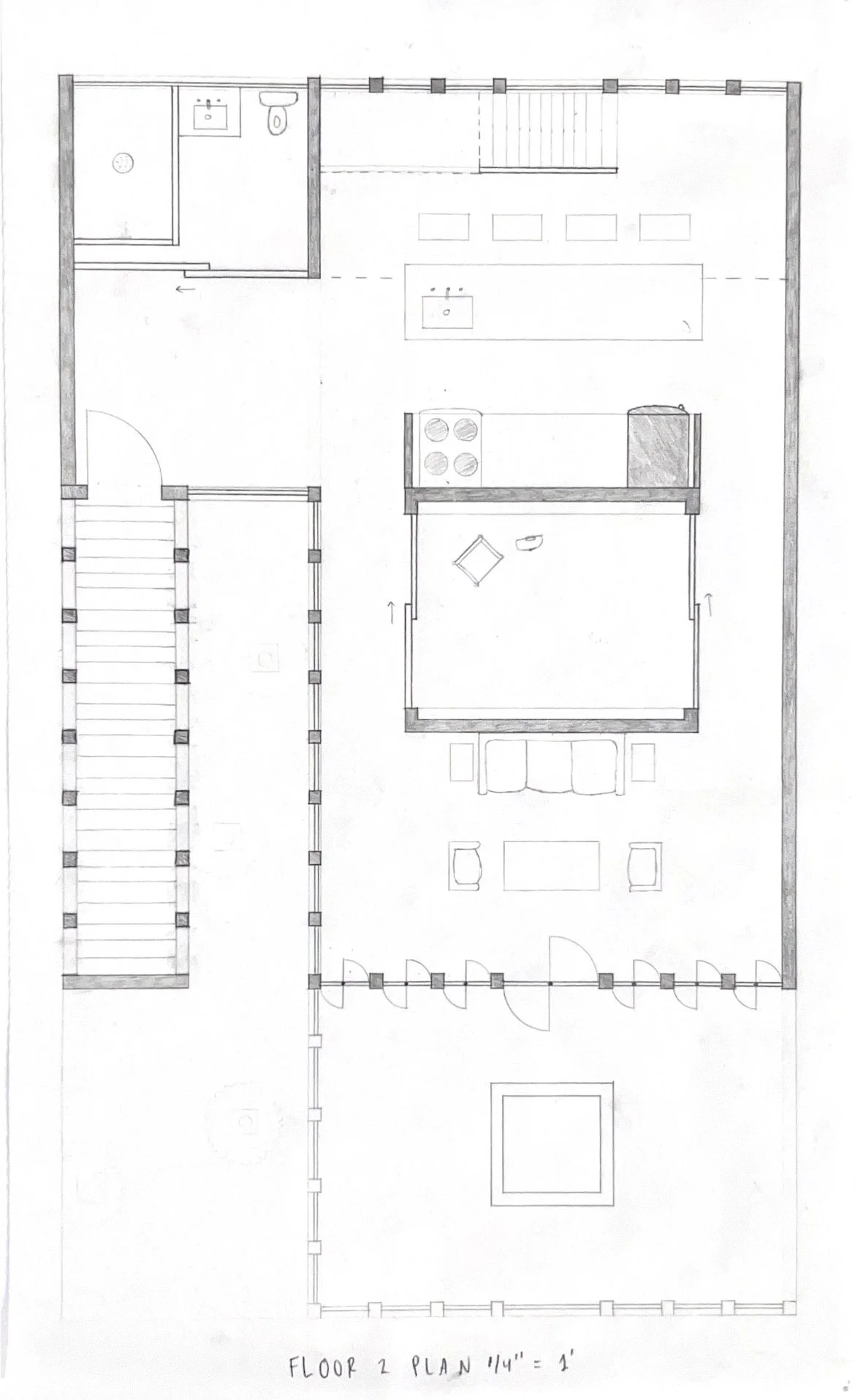
An urban infill in downtown Providence designed for a cellist & and a painter, the duplex uses an objects in space approach, with the design organized around a series of lightwells. Taking inspiration from the James Simon Galerie, a field of slender vertical elements filters daylight into the interior, allowing light to transform the space throughout the course of a day.

Previous
Previous

Garden Court Duplex

Next
Next

Kindergarten