Blurring the line between performer and viewer.

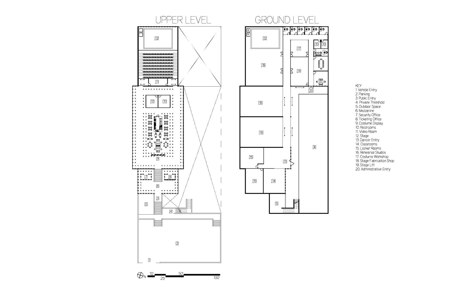
Inspired by the spatial clarity of the Pantheon and the Salk Institute, the Community Dance Center organizes performers and visitors along separate paths that converge at the stage. Oriented toward the Front Range, the theater frames the mountains as a backdrop, turning the act of performance into a shared experience of viewing and being viewed.

Next
Next

Garden Court Duplex